Продаю производство 24300 м2
Цена продажи
3037925000 руб.
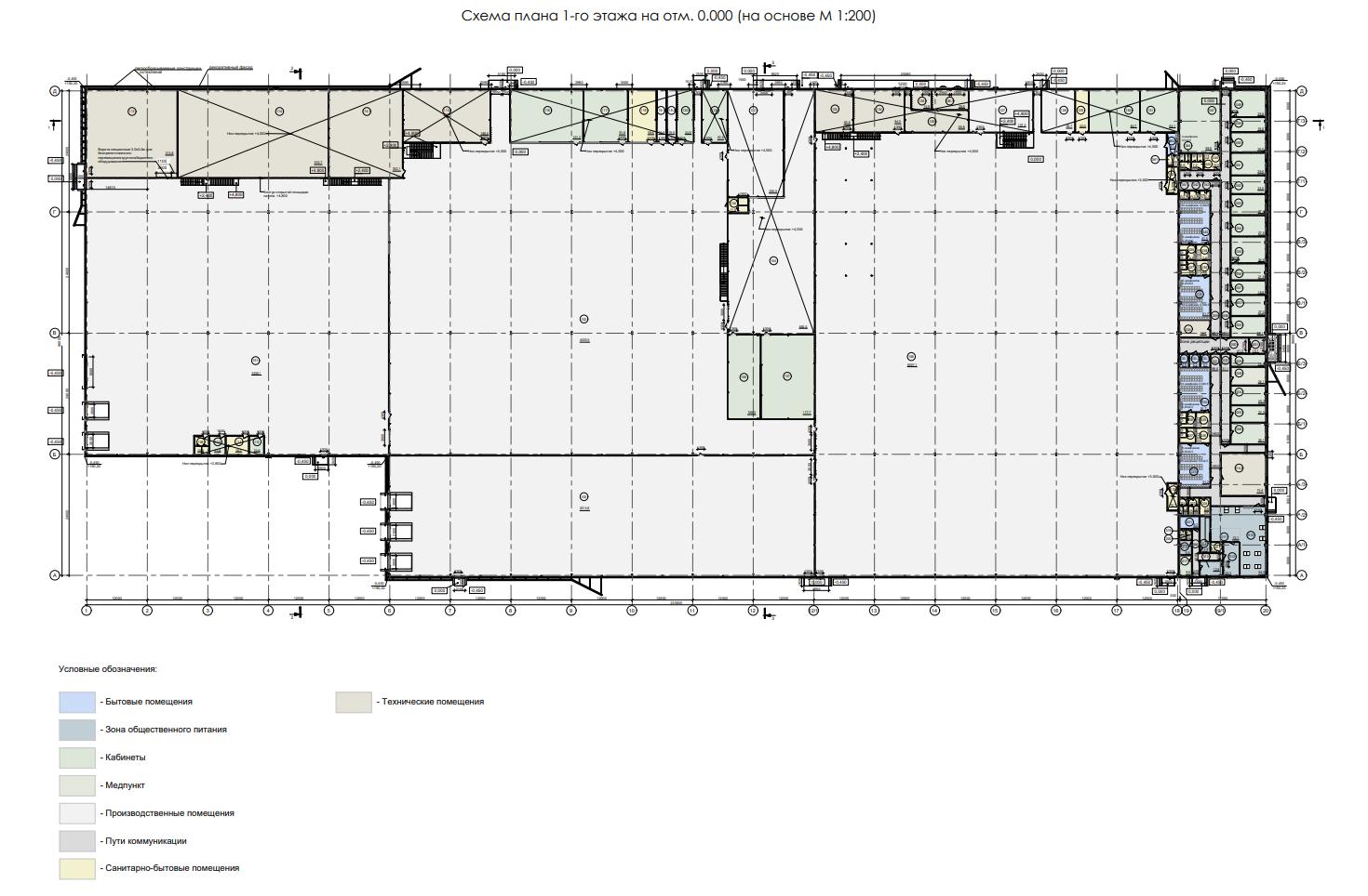
Объект представляет собой современное одноэтажное производственное здание Класса А, общей площадью 24,3 тыс. м2 с высокой инженерной оснащённостью и отличной логистикой, расположенное в сформировавшемся промышленно-складском кластере северного направления Москвы.
Максимально быстрый переезд - готовность к запуску 1 квартал 2026 г. Расположение и логистика: г. Зеленоград (инфраструктура и доступ к квалифицированной рабочей силе) 17 км от МКАД по Ленинградскому шоссе, недалеко от аэропорта Шереметьево удобный съезд на Фирсановское шоссе, 1,8 км от Ленинградского шоссе 1,8 км до МЦД «Фирсановская» первая линия Фирсановского шоссе, удобный заезд на участок Основные характеристики: площадь земельного участка- 4,45 га эффективная площадь застройки- 48,5% широкий спектр кодов ВРИ: 6.2, 6.2.1, 6.3, 6.3.1, 6.4, 6.5, 6.6, 6.11 паркинг 20 грузовых, 63 легковых м/м Конструктивные характеристики объекта: одноэтажное здание, высота потолков - 8 м эффективный шаг колонн 2412 м нагрузка на пол до 6 т/м2 бетонный пол с антипылевым покрытием фасад- трехслойные сэндвич-панели Инженерная инфраструктура: электрическая мощность до 60 Вт/м2 с возможностью увеличения по запросу Клиента собственная газовая котельная теплоснабжение 1,5 Гкал/час водоснабжение 24,2 м/сутки класс энергоэффективности А Общая стоимость: 3037925000 Общая площадь: 24300 кв. м Класс здания: A Этаж/этажность: 1/1
г. Зеленоград
5500-й проезд, 4/3 |
2185507 28 Февраля 2026 просмотров 10 |
Добавить комментарий
Похожие объявления

















